schoolФизика
verifiedРешено AI
Какой доход нужен для получения детских пособий?
help_outlineУсловие задачи
Реши задачу: Какой доход в месяц должен быть ,что б получать детские пособия

lightbulbКраткий ответ
Для получения единого пособия среднедушевой доход семьи не должен превышать прожиточный минимум на душу населения в регионе. В Красноярском крае в 2024 году это 19 891 рубль.
Подробное решение
Для того чтобы понять, какой доход должен быть у семьи для получения ежемесячного пособия в связи с рождением и воспитанием ребенка (единого пособия), необходимо проанализировать данные из представленного протокола и действующее законодательство Российской Федерации.
Ниже приведен разбор ситуации, который можно переписать в тетрадь:
Анализ условий получения пособия
1. Критерий среднедушевого дохода
Основным условием назначения пособия является то, что среднедушевой доход семьи не должен превышать величину прожиточного минимума (ПМ) на душу населения в регионе проживания.
Согласно протоколу для Красноярского края:
\[ ПМ_{на\ душу\ населения} = 19\ 891,00\ руб. \]
2. Расчет текущего дохода семьи
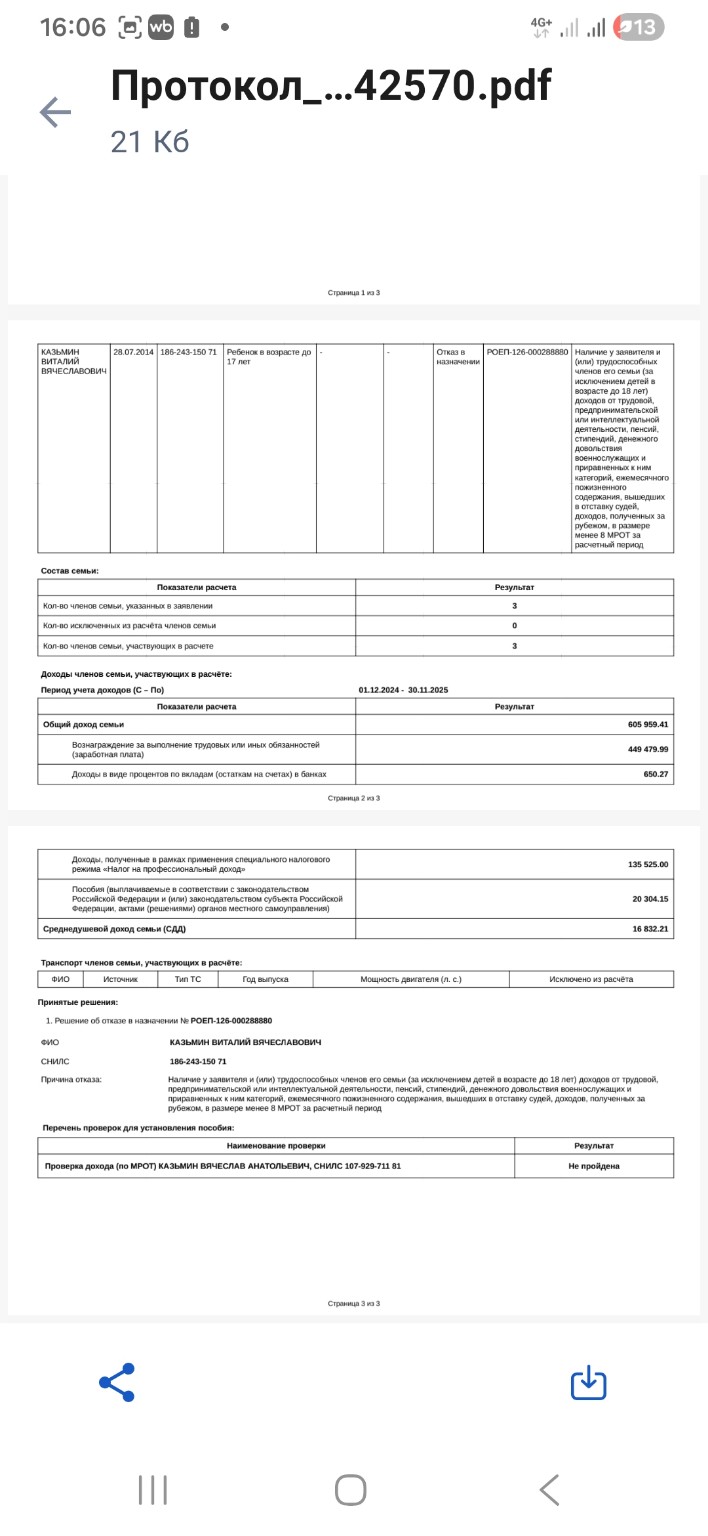
В протоколе указаны следующие данные:
- Общий доход семьи за расчетный период (12 месяцев): \( 605\ 959,41\ руб. \)
- Количество членов семьи: \( 3\ чел. \)
- Среднедушевой доход семьи (СДД) составил:
\[ СДД = \frac{605\ 959,41}{12 \times 3} \approx 16\ 832,21\ руб. \]
По данному критерию семья проходит, так как \( 16\ 832,21 < 19\ 891,00 \).
3. Причина отказа в данном протоколе
Несмотря на то, что доход ниже прожиточного минимума, в назначении пособия отказано. Причина указана в разделе "Принятые решения": проверка дохода по МРОТ (Минимальный размер оплаты труда) не пройдена.
Согласно правилам, суммарный доход трудоспособных членов семьи от трудовой или предпринимательской деятельности за расчетный период должен быть не менее 2-х МРОТ (если доход был не во всех месяцах). В данном случае у Казьмина Вячеслава Анатольевича доход признан недостаточным относительно норматива МРОТ.
Вывод: какой доход нужен?
Чтобы получать пособие, должны соблюдаться два условия одновременно:
1. Верхняя граница (чтобы не отказали из-за богатства):
Среднедушевой доход на каждого члена семьи в месяц должен быть меньше:
\[ Доход_{на\ одного} < 19\ 891,00\ руб. \]
Для семьи из 3-х человек общий доход в месяц должен быть менее:
\[ 19\ 891,00 \times 3 = 59\ 673,00\ руб./мес. \]
2. Нижняя граница (правило "нулевого дохода" и МРОТ):
Трудоспособные члены семьи обязаны иметь официальный доход. Если доход от самозанятости является единственным, то за расчетный период (12 месяцев) он должен составить не менее 2-х МРОТ.
Если МРОТ в 2024 году составляет \( 19\ 242\ руб. \), то минимальный годовой доход самозанятого должен быть:
\[ 19\ 242 \times 2 = 38\ 484,00\ руб.\ (за\ год) \]
Итог для тетради:
Для получения пособия в Красноярском крае в 2026 году (согласно датам в документе) доход на одного члена семьи должен быть больше 0 (официально подтвержденный), но меньше \( 19\ 891\ руб. \). В данном конкретном случае заявителю нужно подтвердить более высокий уровень официального трудового дохода, чтобы он соответствовал требованиям по МРОТ, но оставался в рамках прожиточного минимума.